Tramkade 27
- Opdrachtgever J. Timmers & E. van Winden
- Architect Michiel, Marc & Jasper
- Jaar 2000
- Programma
- Status Opgeleverd
Tramkade 27 in Schipluiden is een gemeentelijk monument met een markante geschiedenis. Voor de huidige bewoners was het extra bijzonder: het pand was het ouderlijk huis van Esther (de vrouw van Joris). Zij kende niet alleen de verhalen van vroeger, maar deed zelf ook uitgebreid onderzoek naar de geschiedenis en beschikte nog over originele tekeningen. Daarmee kreeg de restauratie een heel persoonlijke dimensie.


Een van de grootste uitdagingen was het rechtzetten van het monumentale pand. Hiervoor is het gehele gebouw opgekrikt, zodat een stabiele basis ontstond voor de verdere renovatie. Door dit ingrijpende herstel is het pand weer toekomstbestendig gemaakt, met behoud van zijn monumentale status.
Uitlood en licht verdraaid

Het pand stond ruim 14,5 centimeter uit het lood en was licht verdraaid. Onder begeleiding van funderingsexpert Visser en met de inzet van veertig man werd het gebouw letterlijk rechtgezet. Een indrukwekkende operatie die de basis legde voor het vervolg van de restauratie.
Daarna werd het monument voorzien van een nieuwe tafelconstructie, volledig gestript en opnieuw opgebouwd met nieuwe verdiepingsvloeren en een kapconstructie. Zo kreeg het gebouw niet alleen zijn oorspronkelijke kracht terug, maar ook een nieuwe ruimtelijke kwaliteit.
Ontwerp en ingrepen

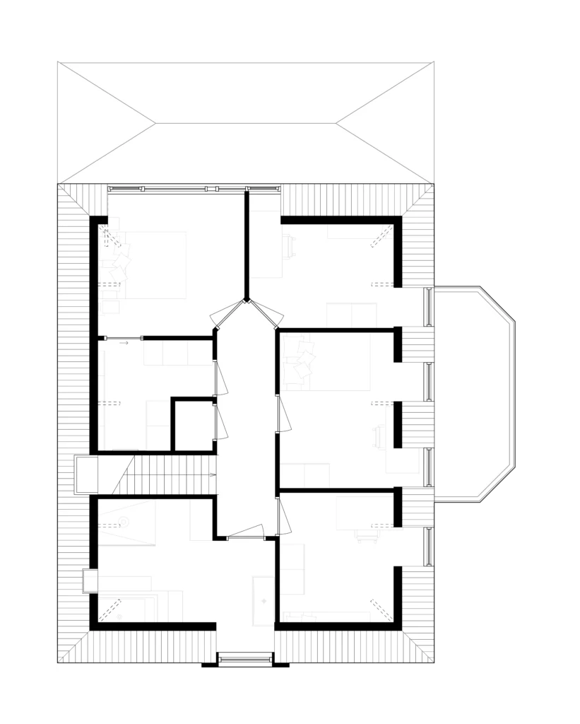
Op de begane grond is gekozen voor een moderne, open woonkamer met een ruime keuken en aanzienlijk minder gangruimte. Hierdoor is de leefruimte sterk vergroot. De woonkamer heeft nu aan vier zijden lichtinval, wat zorgt voor een lichte en open sfeer. Op de verdieping zijn alle slaapvertrekken samengebracht, waardoor een efficiënte en comfortabele indeling is ontstaan. Het interieuradvies van MCK sloot hier naadloos op aan en gaf de woning een eigentijdse uitstraling binnen het monumentale karakter.

Proces begeleiding & meerwaarde
MCK architectuur verzorgde de integrale aanpak: van analyse en ontwerp tot vergunning en uitvoering. De technische uitdagingen werden zorgvuldig afgestemd met gemeente en erfgoedinstanties, zodat elke ingreep verantwoord en uitvoerbaar was.
Tramkade 27 bewijst dat zelfs een scheef en instabiel monument met de juiste aanpak weer rechtop kan staan – letterlijk én figuurlijk. Voor de bewoners is het resultaat extra bijzonder: hun ouderlijk huis kreeg een nieuw leven, waarin historie, persoonlijke verhalen en moderne techniek samenkomen.




Van scheef naar stabiel, van verleden naar toekomst. Een monumentaal huis voorzien van een stevige fundatie. Klaar voor de toekomst.
